F43X1.0型防逆水封閥是我公司高級工程技術人員參照國外技術研究開發的最新產品,F43X防逆水封閥 主要應用干清、蓄水池溢流管道上.平時固閥內有水封可阻止下水管道臭氣進入清水池,因太雨或下水道堵塞等造成雨污水管水位增高時可阻止污水倒灌清水池,是良好的供水衛生保護裝置。
F43X防逆水封閥 結構簡單,溢流順暢無阻,具有雙重水封作用。阻隔臭氣及污水倒灌,性能可靠,效果良好,且污水倒灌時所帶雜物亦不影響密封性能。
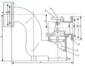
F43x10T防逆水封閥目主要由帶存水彎的閥體及浮球蓋板組件等組成.帶浮球的蓋板蓋在閥體的密封閥座上,將閥腔分成內外兩部分,內腔為清水部分,外腔通排水管道,當內腔充滿清水時,目位于內臟的浮球作月,蓋板壓力降低,易于開啟通流。溢流停止后,蓋扳可自行復位.蓋嚴閥座.從而可嚴格組斷臭氣殛污水倒灌。如果水池進水口浮球閥*關良好.數年不溢流,閥腔無水,浮球可加重蓋板重量.更好地蓋嚴目座,目樣可嚴格姐隔臭氣及防止雨,污水倒灌清水池。如果污水進入閥體外腔.所帶雜物僅能粘附在蓋板外表面,不影響蓋柱封嚴闐座。故該防逆水月工作可靠.效果好,不易出故障。且當有雜物沉淀時.T次溢流時可自動沖出閥體。
當前水力控制閥被廣泛用于石油化工、化工、煤氣、天然氣、液化石油氣、暖通行業以及一般工業中。

| DN | D | D1 | D2 | L | H | H0 |
|---|---|---|---|---|---|---|
| 80 | 200 | 1 60 | 135 | 500 | 380 | 85 |
| 1 00 | 220 | 180 | 155 | 560 | 420 | 85 |
| 1 50 | 285 | 240 | 210 | 690 | 51 0 | 85 |
| 200 | 340 | 295 | 265 | 825 | 600 | 95 |
| 250 | 395 | 350 | 320 | 945 | 700 | 95 |
| 300 | 445 | 400 | 368 | 1065 | 795 | 95 |
| 400 | 565 | 51 5 | 480 | 1308 | 930 | 100 |
| 500 | 670 | 620 | 582 | 1531 | 1080 | 100 |
| 600 | 780 | 725 | 682 | 1770 | 1250 | 100 |
| 700 | 895 | 840 | 794 | 2013 | 1440 | 120 |
| 800 | 1015 | 950 | 901 | 2246 | 1610 | 120 |
| 900 | 1115 | 1050 | 1010 | 2450 | 1810 | 120 |
| 1000 | 1230 | 1160 | 1110 | 2695 | 1940 | 120 |
| 1200 | 1 455 | 1 380 | 1320 | 2700 | 1780 | 140 |
| 1400 | 1 675 | 1 590 | 1530 | 31 00 | 2080 | 1 40 |
公稱壓力:PNl 6—2 5M Pa
公稱通徑:1 5~300
容氣腔壓力(占管道壓力百分數)50~70%
適用介質無雜物的清水、污水
適用介質溫度0~80℃
法蘭標準:68/T l 7241 6 68/T 91 1 3
試驗標準:GB/T l 3927 APl 598
| DN | 管徑 | 1/2” | 3/4” | 1” | 11/4” | 11/2” | 2” | 21/2” |
|---|---|---|---|---|---|---|---|---|
| mm | 15 | 20 | 25 | 32 | 40 | 50 | 65 | |
| L | 1.6MPa | 200 | 300 | 320 | 340 | .350 | 365 | 465 |
| 2.5MPa | 220 | 320 | 340 | 355 | 380 | 385 | 485 | |
| DN | 管徑 | 3” | 4” | 5” | 6” | 8” | 10” | 12” |
| mm | 80 | 100 | 125 | 150 | 200 | 250 | 300 | |
| L | 1.6MPa | 510 | 575 | 600 | 645 | 755 | 855 | 955 |
| 2.5MPa | 520 | 585 | 600 | 645 | 755 | 855 | 955 |
主營產品:氣動調節閥 - 電動調節閥 - 自力式調節閥
版版權所有 © 上海大田閥門管道工程有限公司
地址:上海市浦東新區川宏路528號宏圖大樓5樓
