
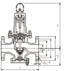
彈簧活塞式減壓閥主要由調節彈簧、膜片、活塞、閥座、閥瓣等零件組成,是彈簧薄膜式減壓的換代產品。利用活塞直接傳感下游壓力驅動閥瓣,控制閥瓣開度完成減壓穩壓功能。彈簧活塞式減壓閥在城市建筑、高層建筑的冷熱供水系統中,可取代常規分區水管,節省設備。也可在通常的冷熱水管網中,起減壓穩壓作用。
彈簧活塞式減壓閥是氣動調節閥的一個必備配件,主要作用是將氣源的壓力減壓并穩定到一個定值,以便于調節閥能夠獲得穩定的氣源動力用于調節控制。
按結構形式可分為膜片式、彈簧薄膜式、活塞式、杠桿式和波紋管式;按閥座數目可人為單座式和雙座式;按閥瓣的位置不同可分為正作用式和反作用式。

彈簧活塞式減壓閥的工作由閥后壓力進行控制。當壓力感應器檢測到閥門壓力指示升高時,減壓閥閥門開度減小;當檢測到減壓閥后壓力減小,減壓閥閥門開度增大,以滿足控制要求。
彈簧活塞式減壓閥的減壓比必須在一定程度上高于系統值;即使在最大或者最小流量時它也應該能夠對正作用或者反作用控制信號做出響應。這些閥門應該針對有用控制范圍選擇,即最大流量的20%到80%。正常為等比型或者具有等比特性。這些類型的閥門本身具有比例控制所要求的最佳流量特性及流量范圍。
Y42X型彈簧活塞式減壓閥屬于直接作用式薄膜彈簧減壓閥。主要由調節彈簧、膜片、活塞、閥座、閥瓣等零件組成。利用膜片直接傳感下游壓力驅動閥瓣,控制閥瓣開度完成減壓穩壓功能。
本產品在城市建筑、高層建筑的冷熱供水系統中,可取代常規分區水管,節省設備。也可在通常的冷熱水管網中,起減壓穩壓作用。本產品調壓、穩壓動作平穩,適用于水和非腐蝕性液體介質的管路。
| 公稱壓力(Mpa) | 1.0 | 1.6 | 2.5 |
| 殼體試驗壓力(Mpa)* | 1.5 | 2.4 | 3.75 |
| 密封試驗壓力(Mpa) | 1.0 | 1.6 | 2.5 |
| 最高進口壓力(Mpa) | 1.0 | 1.6 | 2.5 |
| 出口壓力范圍(Mpa) | 0.2-0.8 | 0.2-1.0 | 0.4-1.6 |
| 壓力特性偏差(Mpa)△P2P | GB12244-1989 | ||
| 流量特性偏差(Mpa)P2G | GB12244-1989 | ||
| 滲漏量 | 0 | ||
| 工作溫度 | 0℃-80℃ | ||
| 零件名稱 | 零件材料 |
| 閥體閥蓋底蓋 | WCB |
| 閥座 | 2Cr13 |
| 閥瓣 | 2Cr13 |
| 閥桿 | 2Cr13 |
| 缸套 | 2Cr13/25(鍍硬鉻) |
| 活塞 | 2Cr13 |
| O型圈 | 丁腈橡膠 |
| 密封圈 | 丁腈橡膠 |
| 膜片 | 夾織物丁腈橡膠 |
| 調節彈簧 | 60Si2Mn |
| DN | 15 | 20 | 25 | 32 | 40 | 50 | 65 | 80 | 100 | 125 | 150 | 200 | 250 | 300 | 350 | 400 | 500 |
| Cv | 1 | 2.5 | 4 | 6.5 | 9 | 16 | 25 | 36 | 64 | 100 | 140 | 250 | 400 | 570 | 780 | 1020 | 1500 |
主營產品:氣動調節閥 - 電動調節閥 - 自力式調節閥
版版權所有 © 上海大田閥門管道工程有限公司
地址:上海市浦東新區川宏路528號宏圖大樓5樓























